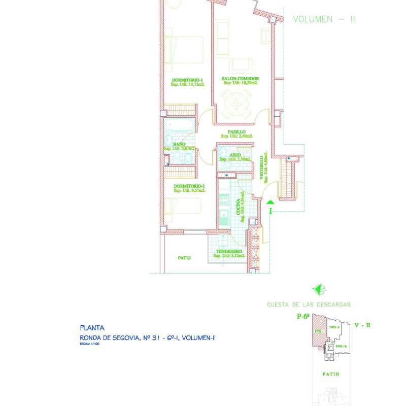
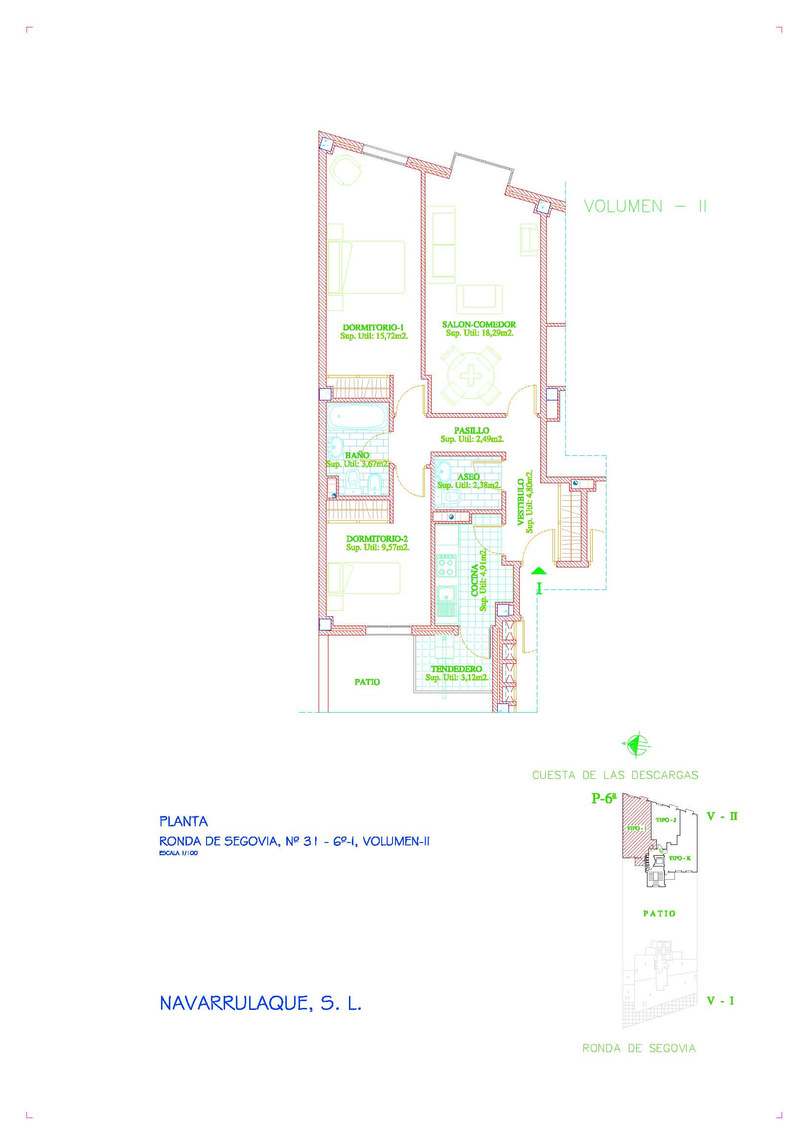
Piso de dos dormitorios, con cuarto de baño completo y aseo, cocina amueblada con electrodomésticos, calefacción y agua caliente por caldera de gas natural individual. Buenas vistas a San Francisco El Grande. Zona muy tranquila y perfectamente comunicada. Tiene tendedero individual, plaza de garaje y trastero.




















